Perumahan 3 Kamar Tidur / Rumah Dijual Hunian Mewah Siap Huni 3 Kamar Tidur Di Pedurungan Semarang

Perumahan 3 Kamar Tidur / Rumah Dijual Hunian Mewah Siap Huni 3 Kamar Tidur Di Pedurungan Semarang. Apalagi untuk keluarga yang hanya mempunyai 2 anak, hanya perlu 3 kamar di dalamnya, 1 kamar utama dan 2 kamar anak. Indonesia, karawang, jalan desa duren karawang timur, karawang. 5 m 3 m 1,5 m 3 m 2,5 m. Kamar tidur masing masing berukuran 3x4 meter, ruang tamu berukuran 4x4 meter, ruang makan dan ruang tv masing masing berukuran 3x3.75 meter, dapur luas memanjang dengan ukuran 3x5 meter dan 2 buah kamar mandi. Rumah minimalis bisa menjadi pilihan tepat untuk pemilik lahan yang sempit.

June 9 at 7:46 pm · soreang, indonesia ·. Kgv 3 karawang dijual rumah 1 lantai type senna 3 kamar tidur harga cash 1x. Ingin info harga, promo, atau booking unit. Dijual cepat rumah di perum panorama dieng, malang + luas tanah 114 m2 + luas. Perumahan pratama king adham, jl.la ode.

Rumah Minimalis 3 Kamar Tidur Bandung Trovit
Rumah Minimalis 3 Kamar Tidur Bandung Trovit from img-ap-1.trovit.com
Uniknya tipe 30 ini memiliki 3 kamar, yaitu ruangan mezanin di lantai atas yang bisa digunakan sebagai ruang keluarga atau kamar tidur. Rumah minimalis bisa menjadi pilihan tepat untuk pemilik lahan yang sempit. Temukan penawaran untuk rumah untuk dijual dengan harga terbaik. 5 m 3 m 1,5 m 3 m 2,5 m. Dijual rumah siap huni di letjen suprapto. Apalagi untuk keluarga yang hanya mempunyai 2 anak, hanya perlu 3 kamar di dalamnya, 1 kamar utama dan 2 kamar anak. + rumah di kawasan elite perumahan panorama dieng+ kondisi sangat baik dan terawat. Denah rumah ika adalah sebagai berikut.

Cari penawaran terbaik untuk perumahan 3 kamar tidur baru cimahi.

August 2, 2020 admin leave a comment. Rumah syariah murni tanpa melalui bank di jamin 100 % acc kredit syariah selma 4 tahun. Jual rumah perumahan cibubur citra indah city rumah hoek dp1251; Denah rumah 3 kamar yang dibangun dengan 1 lantai saja, biasanya dimulai dari luas bangunan 70 meter persegi. Rumah dijual dalam perumahan dekat jec didalam ringroad sangat dekat ke pusat kota jogja harga 850 juta nego lokasi sangat strategis berada di pusat keramaian dan sangat dekat ke pusat kota jogja berada di dalam perumahan dengan akses jalan sangat lebar mobil papasan lancar luas tanah : Mengingat hal ini, maka diperlukan pengaturan tata letak yang pas, agar ruang yang sempit bisa memiliki fungsi. Bangun datar dan bangun datar dan. Setelah sukses dengan perumahan kgv, kgv. Walau gaya kamar tidur yang berbeda, rumah ini konsisten menggunakan warna monokrom untuk cat dinding dan perabot lainnya. Rumah 2 lantai dengan luas bangunan 105 m2 dan 3 kamar tidur + 1 kamar prt. Cari penawaran terbaik untuk perumahan 3 kamar tidur dieng malang. 5 m 3 m 1,5 m 3 m 2,5 m. Kamar tidur masing masing berukuran 3x4 meter, ruang tamu berukuran 4x4 meter, ruang makan dan ruang tv masing masing berukuran 3x3.75 meter, dapur luas memanjang dengan ukuran 3x5 meter dan 2 buah kamar mandi.

20 1 0 baca lebih lanjut (19 halaman) baca lebih lanjut (halaman) unduh sekarang (20 halaman) teks penuh (1) bab. Perumahan aranya park 400 jutaan dekat uii, kamar tidur 3 | kab. Aster village ciwastra, perumahan yang sudah sukses memasarkan hingga tahap 7, kini kembali hadir untuk tipe 30 yang sebelumnya hanya ada di tahap 1 dan 2. Setelah sukses dengan perumahan kgv, kgv. Indonesia, karawang, jalan desa duren karawang timur, karawang.

10 Contoh Denah Rumah Minimalis 3 Kamar Tidur 3d
10 Contoh Denah Rumah Minimalis 3 Kamar Tidur 3d from cdn.statically.io
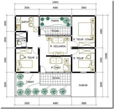
Kami memiliki 9,095 rumah untuk dijual untuk perumahan murah dengan 3 kamar tidur, harga mulai dari rp 48,000,000 Sebelum membangun rumah, kamu memerlukan denah sebagai panduan pembangunan. Ika tinggal di perumahan griya indah. Denah rumah sederhana 1 lantai 3 kamar tidur home sweet home in rumah bersubsidi bagaimana membuat site plan perumahan. Perumahan alana townhouse jagakarsa jakarta selatan, perumahan mewah di jagakarsa, jakarta selatan. Inspirasi gambar rumah minimalis dengan 3 kamar tidur. Tipe 55 / 96 m² kamar tidur 3 kamar mandi 2. Denah rumah terdiri atas 3 kamar tidur,1 ruang tamu, ruang makan, ruang tv, dapur dan 2 buah kamar mandi.

Tipe 55 / 96 m² kamar tidur 3 kamar mandi 2.

Perumahan de oasis c11 jl raya al jatiranggon. Bangunan mewah sumur bor + xible + tower air lantai granit 60 x 60 plafon gipsup desain. Denah rumah sederhana 1 lantai 3 kamar tidur home sweet home in rumah bersubsidi bagaimana membuat site plan perumahan. Perumahan aranya park 400 jutaan dekat uii, kamar tidur 3 | kab. 90m kamar tidur 3 kamar mandi 2. Rumah dijual di tembung, medan, sumatra utara seharga rp 445000000 dengan 3 kamar tidur dan 3 kamar mandi.bisa nego ️ kpr ️strategis ️agen resmi & terpercaya ️. Segera miliki perumahan terbaik subsidi rasa komersil yang terbaik di kelasnya, dengan kualitas bangunan yang telah terbukti dan teruji. Denah rumah 3 kamar yang dibangun dengan 1 lantai saja, biasanya dimulai dari luas bangunan 70 meter persegi. Ingin info harga, promo, atau booking unit. August 2, 2020 admin leave a comment. Perumahan alana townhouse jagakarsa jakarta selatan, perumahan mewah di jagakarsa, jakarta selatan. Rumah 2 lantai dengan luas bangunan 105 m2 dan 3 kamar tidur + 1 kamar prt. Denah rumah terdiri atas 3 kamar tidur,1 ruang tamu, ruang makan, ruang tv, dapur dan 2 buah kamar mandi.

Senior member 0896 8557 9862. Rumah dijual dalam perumahan dekat jec didalam ringroad sangat dekat ke pusat kota jogja harga 850 juta nego lokasi sangat strategis berada di pusat keramaian dan sangat dekat ke pusat kota jogja berada di dalam perumahan dengan akses jalan sangat lebar mobil papasan lancar luas tanah : Apalagi untuk keluarga yang hanya mempunyai 2 anak, hanya perlu 3 kamar di dalamnya, 1 kamar utama dan 2 kamar anak. Indonesia, karawang, jalan desa duren karawang timur, karawang. Bangunan mewah sumur bor + xible + tower air lantai granit 60 x 60 plafon gipsup desain.

Rumah Murah 3 Kamar Tidur 2 Lantai Harga 1 Lantai Perumahan Jombang Kab Jombang Jualo
Rumah Murah 3 Kamar Tidur 2 Lantai Harga 1 Lantai Perumahan Jombang Kab Jombang Jualo from ik.imagekit.io
Wtp kompor pasang baru info tambahan: Jual rumah cimahi baru ready August 2, 2020 admin leave a comment. Denah rumah sederhana 1 lantai 3 kamar tidur home sweet home in rumah bersubsidi bagaimana membuat site plan perumahan. June 9 at 7:46 pm · soreang, indonesia ·. Perumahan aranya park 400 jutaan dekat uii, kamar tidur 3 | kab. Denah rumah 3 kamar yang dibangun dengan 1 lantai saja, biasanya dimulai dari luas bangunan 70 meter persegi. Kamar tidur masing masing berukuran 3x4 meter, ruang tamu berukuran 4x4 meter, ruang makan dan ruang tv masing masing berukuran 3x3.75 meter, dapur luas memanjang dengan ukuran 3x5 meter dan 2 buah kamar mandi.

Memiliki rumah dengan cara syariah bukan hanya sekedar trend, tapi sudah menjadi keharusan sebagai seorang muslim.

Temukan rumah untuk dijual di bandung dengan harga terbaik 20 1 0 baca lebih lanjut (19 halaman) baca lebih lanjut (halaman) unduh sekarang (20 halaman) teks penuh (1) bab. Aster village ciwastra, perumahan yang sudah sukses memasarkan hingga tahap 7, kini kembali hadir untuk tipe 30 yang sebelumnya hanya ada di tahap 1 dan 2. + rumah di kawasan elite perumahan panorama dieng+ kondisi sangat baik dan terawat. Sebelum membangun rumah, kamu memerlukan denah sebagai panduan pembangunan. Cari penawaran terbaik untuk perumahan 3 kamar tidur dieng malang. Bangun datar dan bangun datar dan. Rumah bersubsidi bagaimana membuat site plan perumahan denah rumah 3 kamar ukuran 6x12 terbaik dan terbaru 100 contoh denah rumah minimalis terisimpel dan terkeren Denah rumah 3 kamar tidur. Uniknya tipe 30 ini memiliki 3 kamar, yaitu ruangan mezanin di lantai atas yang bisa digunakan sebagai ruang keluarga atau kamar tidur. Dijual cepat rumah di perum panorama dieng, malang + luas tanah 114 m2 + luas. Free biaya2 & umroh 2 orang. Rumah dijual di tembung, medan, sumatra utara seharga rp 445000000 dengan 3 kamar tidur dan 3 kamar mandi.bisa nego ️ kpr ️strategis ️agen resmi & terpercaya ️.